August & Ally

Amsterdam | 2020 | residential + commercial | Space&Matter

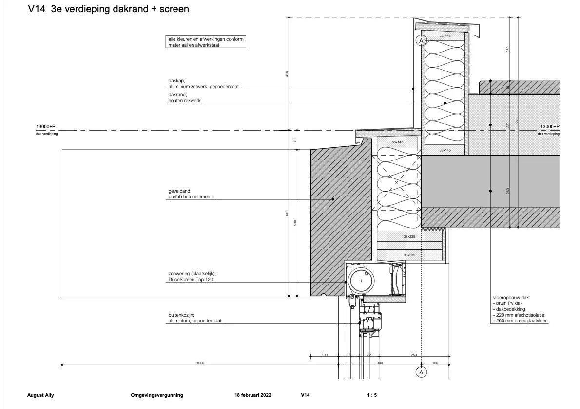
This residential building with elderly homes is situated at the August Allebé Plein in Amsterdam West. It’s a typical Space&Matter project with continuous concrete bands and brickwork facade surfaces. It has a very clean look due to integrated sunscreens, integrated rainwater drains and baluster-free railings.

I was responsible for the technical details used for the building permit and used by third parties to elaborate the working drawings.

View project on Space&Matter

All images © Space&Matter

Previous
Previous

Modular Building

Next
Next

Achmea Campus