Modular Building

2022 | residential | Space&Matter

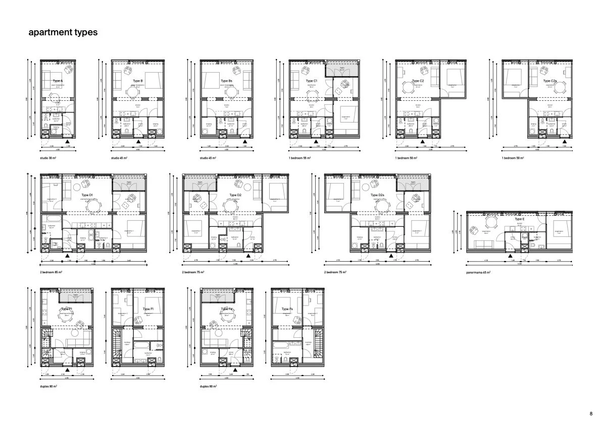
Project text will follow.

All images © Space&Matter

Previous
Previous

E-buurt

Next
Next

August & Ally