BOOM

Middelharnis | 2023 | residential | Boombuilds

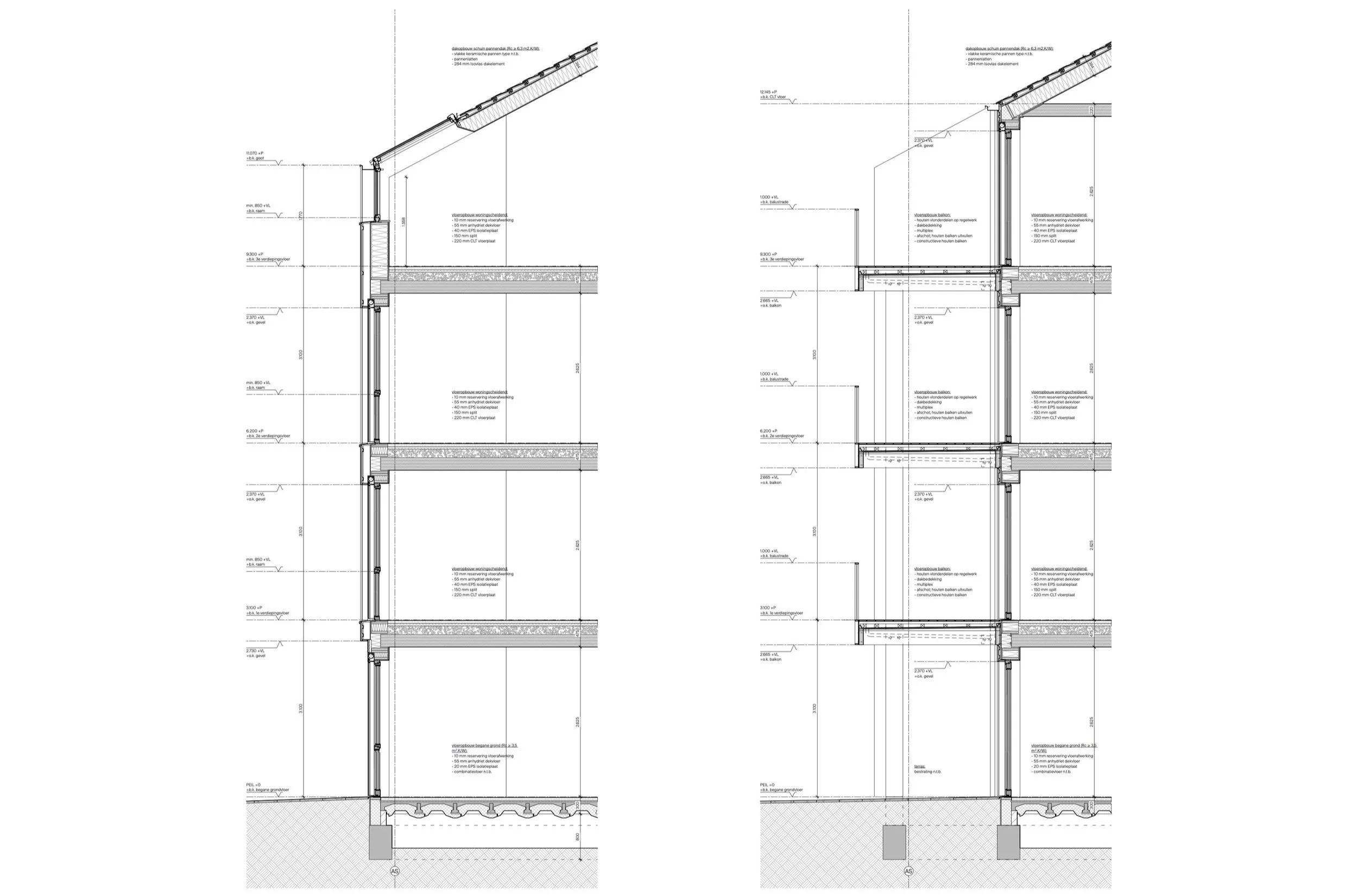
My first project as a self employed Technical Designer was commissioned by BoomBuilds, a timber construction consultancy agency. I set up the primary technical detailing for a large housing development in the town of Middelharnis.

Using the supplied architectural drawings as a starting point, I worked together with the Boombuilds team to find practical, yet appealing solutions. Rainwater drains and sunscreens behind the cladding, integrated gutters and railings with invisible fixing.

All images © Boombuilds

Previous
Previous

Schoonschip

Next
Next

WLG Smartlofts