Object One

Deventer | 2017 | residential + commercial | Space&Matter

The most exciting project never build.

Object One, unlimited freedom within the grid. You’d be able to buy a disired amount of space, vertical, horizontal, as you’d wish and design and build your own home.

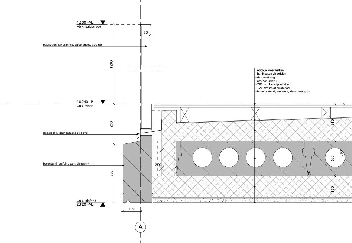
A bold palet of different facade materials, windows and outdoor spaces resulted in complicated detailing. The search was for a general wall structure that allows different facade materials and different window types, flush and recessed.

An extra complication were the integrated outdoor spaces. The floor and ceiling of the superstructure needs to be fully insulated but at the same time allowing for a smooth transition between indoor and outdoor.

Within the superstructure there are dedicated zones for bathrooms and kitchens and a smart conduit shaft layout allows for maximum flexibility. The combination of steel columns and beams with prefabricated concrete floors enables the inclusion of voids and staircases.

View project on Space&Matter

All images © Space&Matter

Previous
Previous

Circular City House

Next
Next

Schoonschip