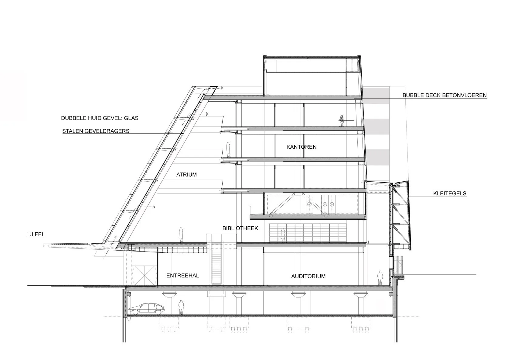
RACM

Amersfoort | 2008 | office + public | Juan Navarro Baldeweg + ADP architecten

Project text will follow.

Previous
Previous

DNB

Next
Next

Langestraat